发布日期:2025-03-06 09:10 点击次数:50
说在前面
业主是一对有趣的年轻夫妻,有两个可爱的男宝,她们在网上刷到了我们设计的作品,觉得我们作品很满意,随即,他们与我们取得联系,经过深入交流,双方迅速达成共识。目前是精装房来着,他们希望通过局部改造,增添更多贴心设计,融合优雅质感的中古风格。
原始户型图

1.入户鞋柜是原本开发商赠送的,经典的现代灰色木纹,“弃之可惜,食之无味”
2.入户左边原本是厨房门进出的位置,餐厅背靠两堵墙,厨房关系完全独立采光不好
3.原本厨房的L型橱柜操作台面比较局促,狭小拥挤
4.主卧 1.8米床,无法满足三侧行走,收纳空间严重不足,需要满足业主偶尔居家办公的需求
5.儿童房需满足两个宝宝各自学习、玩耍收纳空间
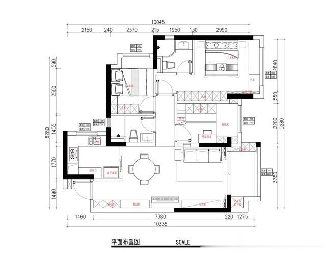
平面布置图

1.为平衡美观与预算,我们保留现有鞋柜内部布局,将门板换为全屋定制统一的胡桃木色,美观的基础上有效控制成本。
2.餐厨间隔墙打通,设推拉门,动线流畅,客餐厅之间更加通风明亮。
3.厨房改造为U型橱柜,增设操作台面作电器区,便于操作与清洁。新砌墙面采用珐琅板饰面,与原有灰色墙砖融合,既美观又实用,易于打理。
4.通过调整主卧与儿童房隔墙,向儿童房借用 30 公分空间,主卧床尾得以增设3米整排衣柜,大幅提升收纳能力。
5.同时,利用飘窗区域设计成抽拉式书桌,巧妙利用空间。对于不可拆除的承重墙,外侧增设薄柜既作为报刊、手办展示柜,也是化妆品收纳区,实现了空间的多功能化与高效利用。
6.儿童房做错位上下铺,各自拥有独立休息空间,上床下柜,满足两人收纳。
玄关

改造前后对比

入户鞋柜原门板颜色与中古风格不符,更换为胡桃木色后与全屋风格融合,提升美观度。鞋柜位于门口,作为室内外过渡空间,合理布局提供缓冲和准备区域,方便日常活动,增强家居实用性和舒适度。

鞋柜中间镂空区域放置装饰品托盘等,回家可以随手放置钥匙手表等饰品。

餐边柜地柜与鞋柜颜色一致,增加回家视觉延伸感一致,镂空格子可以放置常用食品茶叶。上方白色吊柜更加轻盈,储物柜和开放式木质抽屉也为整个空间增添了层次感和实用性。
餐厅

改造前后对比

原本,餐厅背靠两堵墙,餐厨空间不够通透。经过改造,餐厨间的隔墙被打开,采用黑色玻璃推拉门,巧妙地划分了空间,既保持了空间的通透性。让厨房与餐厅之间的活动动线更加流畅,更使得客厅的光线能够直接引入厨房,整个空间因此变得更加明亮与通透。

墙壁上,软木板照片墙成为视觉的焦点。上面贴满了各种照片和便签,记录着生活的点滴与美好。这不仅是一个展示的空间,更是一个充满情感与回忆的小角落。

餐厅中央,圆形餐桌摆放在中央,中古藤椅橙白交替,为整个空间增添了一抹活泼的色彩。银色的摇臂吊灯悬挂在桌子上方,可以跟随餐桌调整位置,为用餐时光投下柔和温馨的光影。
厨房

改造前后对比

厨房以白色和灰色为主色调,原本L型的橱柜被巧妙地扩展为U型,极大地增加了操作台面和储物空间。新砌的墙面并没有采用传统的贴砖方式,而是与原本的灰色墙砖一起,采用了珐琅板饰面。这种设计不仅美观大方,还能遮盖瑕疵,打理起来也极为方便。

在厨房的一侧,微波炉、烤箱,都在安置在合理的区域,为烹饪提供了更多便捷性。橱柜上整齐有序的厨具餐具,既实用又美观。
客厅

效果图与实景图对比


沙发背后,镂空的玻璃隔断成为视觉的焦点。水波纹的纹理让玻璃后的景观被赋予了油画般的质感,光线的穿插使得整个空间更加明亮通透,趣味十足。

客餐厅并未选择传统的满墙定制柜,而是采用了模块组合型书柜作为电视柜。这样不仅满足了收纳需求,更赋予了空间更多的灵活性,电视柜的高度与造型可根据需求自由调整。


客厅摒弃常规的茶几,可以搭配灵活移动的小推车。这样就让空间更加开阔,更为孩子们在客厅玩耍提供了便利,增加了亲子时光乐趣。橘黄色的甜甜圈壁灯散发着暖意,它不仅是阅读的照明工具,更是空间中一件不可多得的装饰品,为生活增添了一抹温馨与浪漫。

电视柜与餐边柜之间,巧妙地预留了一个空位,未来放置钢琴的位置,这样布局,既满足了当下的生活需求,也为未来预留了足够的改造空间。
主卧

改造前后对比


飘窗区域的设计很有小心机,铺上羊羔绒垫子,这里瞬间变成了一个温馨的休闲角落。白天,可以坐在这里享受着窗外的美景,感受阳光。睡前轻轻开启夜灯,这里又变成了一个静谧的阅读空间。

当需要加班时,飘窗的抽拉桌面更是发挥了它的神奇作用。轻轻一拉,一个超长的大书桌便可满足所有的工作需求。这样的设计,既实用又充满了趣味性,让空间的使用变得更加灵活多变。

黑色床头板与白色墙壁、绿色被子相互衬托,增强层次感的同时不失和谐。壁灯增添温馨感。木质床头柜兼具质感与实用性,提供储物空间。可以在上面摆手机等小物品,既实用又美观。窗帘与墙壁色彩相近,保持整体空间统一,兼顾保护个人隐私。
次卧


次卧的进门处,衣柜的侧面设计开放式区域,解决了次净衣的收纳问题,还让整个空间显得更加通透和宽敞。可以随意挂置衣物,既方便又实用。而且,这样设计避免了开门时直视衣柜侧面的尴尬,让视觉体验更加舒适。

小空间的床头定制背板取代了传统的床头靠背,这样不仅节省了空间,还让整个卧室看起来更加简洁和大气。同时,也让床尾的空间变得更加宽敞。
儿童房

效果图与实景图对比

下铺利用飘窗的位置,设计成了一个1.35米乘以1.9米的榻榻米,而上铺则巧妙地避开了飘窗的位置,做成了一个1.1米乘以2米的床铺。在上铺的吊顶处隐藏了空调挂机,既美观又实用,同时形成上铺独立的小空间。

上下铺之间1.4米的高度差,打造兄弟俩的专属衣帽间。衣柜内可以自由调整高度的任意撑,适合不同成长阶段的孩子使用。满足孩子们的储物需求,培养他们自己整理收纳的习惯。
Powered by 火狐体育规则怎么玩懂 @2013-2022 RSS地图 HTML地图
Copyright Powered by365建站 © 2013-2024